ติดต่อโฆษณา Line ID = salebiz

ร้านอาหาร 2 ชั้น ใจกลางกรุงเทพฯ เดิน 9 นาทีจาก BTS ทองหล่อ

  • ฿120,000
ซอย สุขุมวิท 38 แขวงพระโขนง เขตคลองเตย กรุงเทพมหานคร ประเทศไทย
ให้เช่า รับนายหน้า
ซอย สุขุมวิท 38 แขวงพระโขนง เขตคลองเตย กรุงเทพมหานคร ประเทศไทย
  • ฿120,000

รายละเอียด

ร้านอาหาร 2 ชั้น ใจกลางกรุงเทพฯ เดิน 9 นาทีจาก BTS ทองหล่อ มาพร้อมครัวมืออาชีพ พื้นที่รับประทานอาหาร สามารถรับนักท่องเที่ยวได้ดี และอยู่ในเขตเมืองทำ delivery ให้กับคนเมืองได้สามารถเปิดร้านอาหาร หรือคาเฟ่ ต่อได้เลย และมีที่จอดรถ เหมาะอย่างยิ่งสำหรับผู้ที่ต้องการเริ่มธุรกิจอาหารทันที เพียงนำแบรนด์ของคุณมา เราเตรียมพื้นที่พร้อมให้แล้ว

🍴 พื้นที่ร้านอาหารให้เช่า / เซ้งกิจการ

📍 ทำเลที่ตั้ง: BTS ทองหล่อ //ซอยแสงชัย (สุขุมวิท 38)/ https://maps.app.goo.gl/AVyf4sVsDuBsWC7k6

เดิน 9 นาทีจาก BTS ทองหล่อ (หรือรถยนต์ 3 นาทีจาก BTS ทองหล่อ)

🏢 ประเภทร้าน: ร้านอาหาร 2 ชั้น
🍳 ครัวและห้องรับประทานอาหาร: อุปกรณ์ครบครันระดับ High-end พร้อมใช้งานทันที

🔹 จุดเด่นของสถานที่:

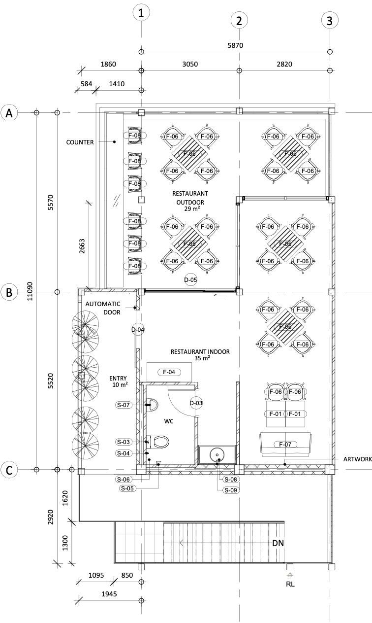
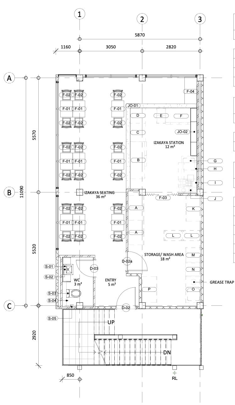
  • ขนาดพื้นที่: 150ตร.ม. (ติดแอร์ครบทุก Zone)
  • จำนวนชั้น: 2
    • ชั้นล่าง: พื้นที่นั่งรับประทานอาหาร + ห้องครัว + ห้องน้ำ)
    • ชั้นบน: พื้นที่นั่งรับประทานอาหาร + ห้องน้ำ + ระเบียงที่นั่ง Outdoor)
  • ความจุที่นั่ง: 60-70
  • ครัว: ครบครันด้วยอุปกรณ์ระดับ High-end (เตา, เครื่องดูดควัน, ตู้เย็น, ตู้แช่แข็ง ฯลฯ)
  • ที่จอดรถ: สามารถจอดริมถนนได้
  • ห้องน้ำ: 2 (1 ห้องต่อชั้น)
  • ใบอนุญาตพร้อม: ใบอนุญาตร้านอาหาร
  • มีห้อง Storage ใต้บันได พร้อมตู้ Freezer และชั้นวางของ

🔹 เหมาะสำหรับ: ร้านอาหาร คาเฟ่ ครัวกลาง ครัวเดลิเวอรี เบเกอรี่

💰 รายละเอียดการเช่า:

  • ค่าเช่า: 120K
  • มัดจำ: 3 เดือน
  • เงื่อนไขสัญญา: 3 ปี

📞 ติดต่อเพื่อเข้าชม / สอบถามเพิ่มเติม
คุณเอก 082-425-6161

ร้านอาหารพร้อมดำเนินการทันที — เพียงนำแบรนด์ของคุณมา ก็เริ่มขายได้เลย!

 

สิ่งที่ได้ไปพร้อมจากการเซ้งร้าน

  • เตาแก๊ส
  • ระบบไฟฟ้า + ระบบดูดควัน
  • ตู้เย็น + ตู้แช่แข็ง
  • แอร์
  • เฟอร์นิเจอร์ลอยตัว โต๊ะเก้าอี้ ตู้ตกแต่งสไตล์เปรูเวียน
  • บาร์น้ำพร้อมอุปกรณ์
  • อุปกรณ์ครัวชั้นวางสแตนเลส
  • เครื่องเสียงลำโพงชุดเล็ก
  • ถ้วยจานชาม แก้วน้ำ กล่องเครื่องปรุง
  • ระบบกล้องวงจรปิด

อื่นๆอีกมากมายสำหรับร้านอาหารพร้อมเปิด

ทำเลดี ติดย่านธุรกิจ สามารถรับนักท่องเที่ยวได้ดี และอยู่ในเขตเมืองทำ delivery ให้กับคนเมืองได้สามารถเปิดร้านอาหาร หรือคาเฟ่ ต่อได้เลย และยังมี ฐานลูกค้า โทรมาหรือต้องการเข้ามาทานอาหารให้บริการอยู่

  • ที่อยู่ ซอย สุขุมวิท 38 แขวงพระโขนง เขตคลองเตย กรุงเทพมหานคร ประเทศไทย
  • อำเภอ/เขต เขตคลองเตย
  • จังหวัด กรุงเทพ
  • รหัสไปรษณีย์ 10110
  • ประเทศ ประเทศไทย

ห้วข้อรายละเอียด

อัปเดตเมื่อวันที่ กันยายน 11, 2025 ที่ 12:12 pm
  • รหัสร้าน: 39396
  • ราคา: ฿120,000
  • หมวดหมู่ร้าน: ร้านอาหาร
  • สถานะร้าน: ให้เช่า

Compare listings

เปรียบเทียบ
sirgap
  • sirgap